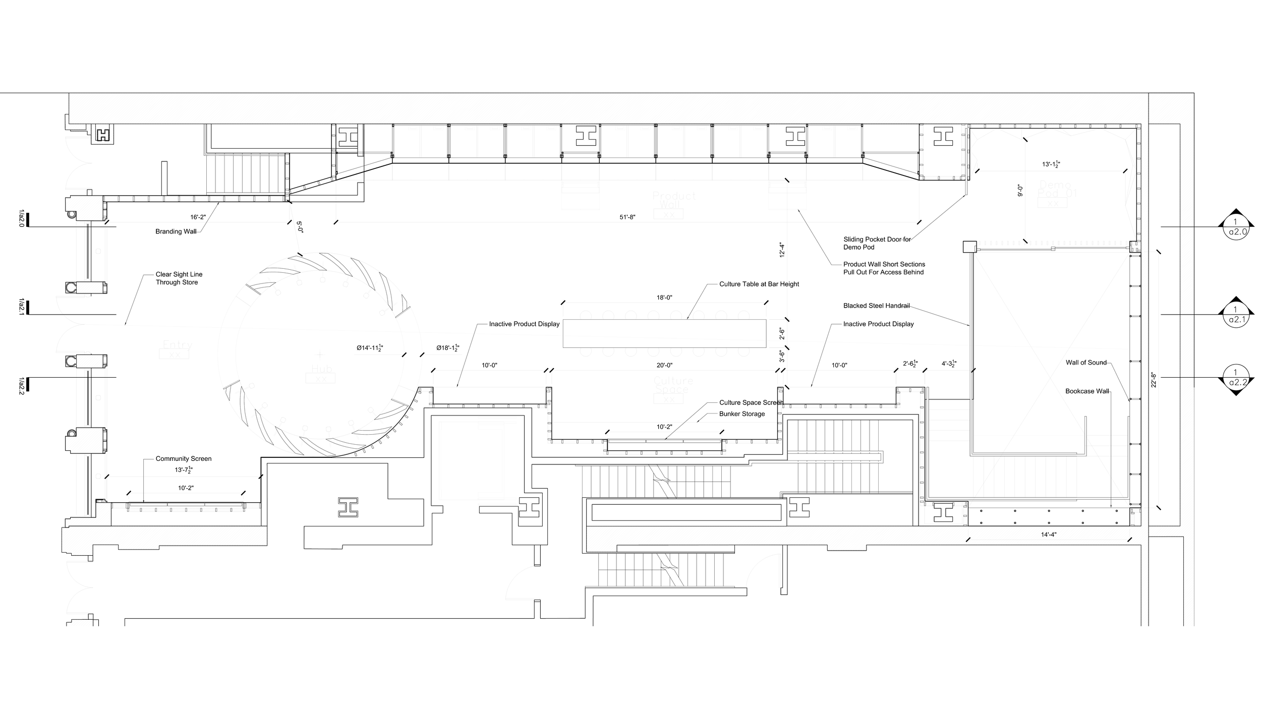
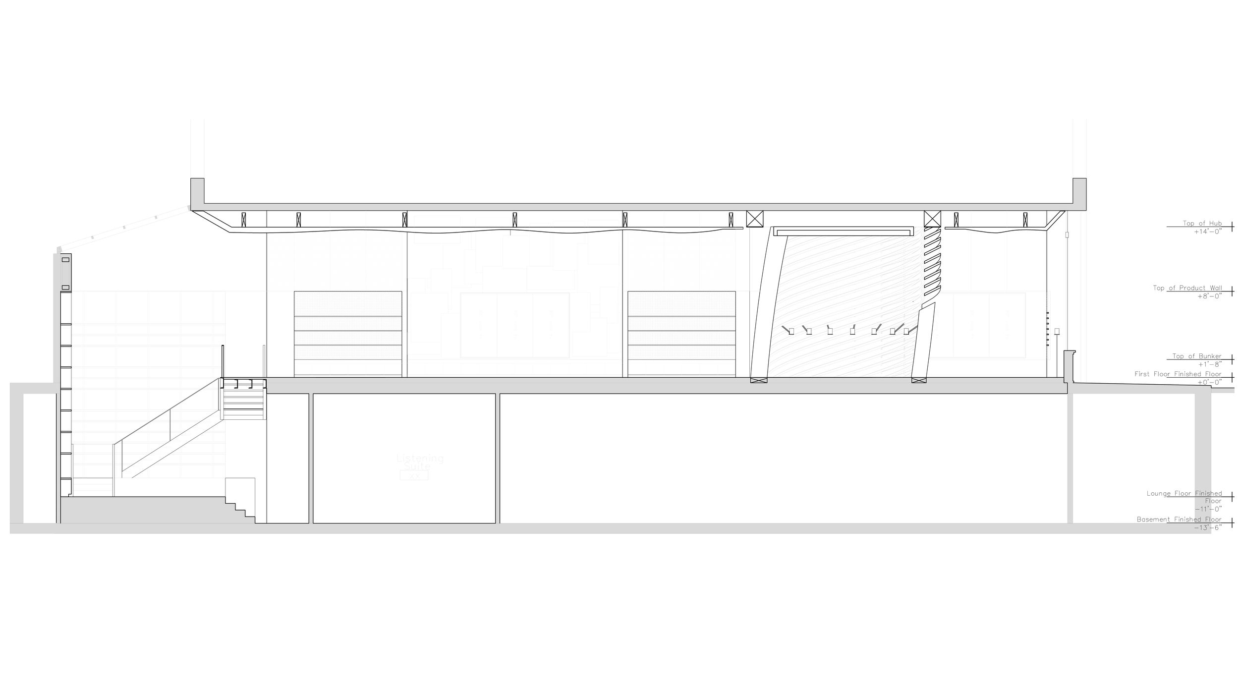
Sonos Retail Concept
Project Manager, Producer
HUSH
The Sonos project is a retail concept designed to embody the company’s Brand pillar “Fill Your Home With Music.”
With the core principles of attract, inspire, and amplify, concepts of customer journey and interaction, store layout, and fixture design were developed.
With fabrication and technology partners, HUSH designed and built a full scale, interactive Retail Concept space for Sonos, as a long-term User Testing and UX training Lab for their first retail store in New York City.
 
 
 
 
 
 
 
 
 
 
 
 
 
 
 
 
 
 
 
 
 
